5 locali in vendita

Castiglione Torinese, Strada Del Mondino
€ 229.000
5 locali 5 locali
130 Mq 130 Mq
2 bagni 2 bagni

5 locali in vendita

Castiglione Torinese, Strada Del Mondino

Descrizione annuncio

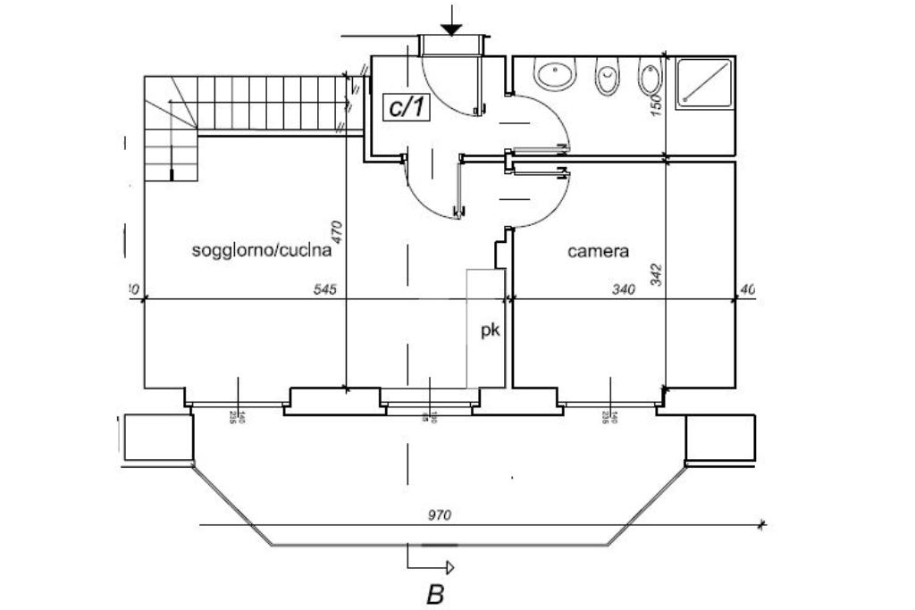
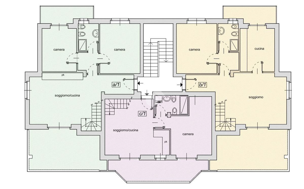
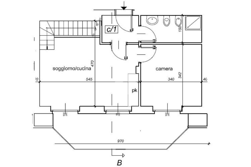
APPARTAMENTO BILIVELLO CON TERRAZZO IN CONSEGNA OTTOBRE 2026 - CLASSE ENERGETICA A4

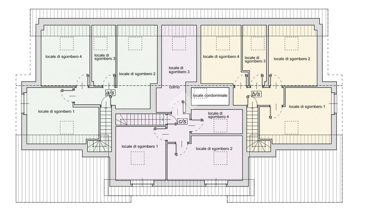
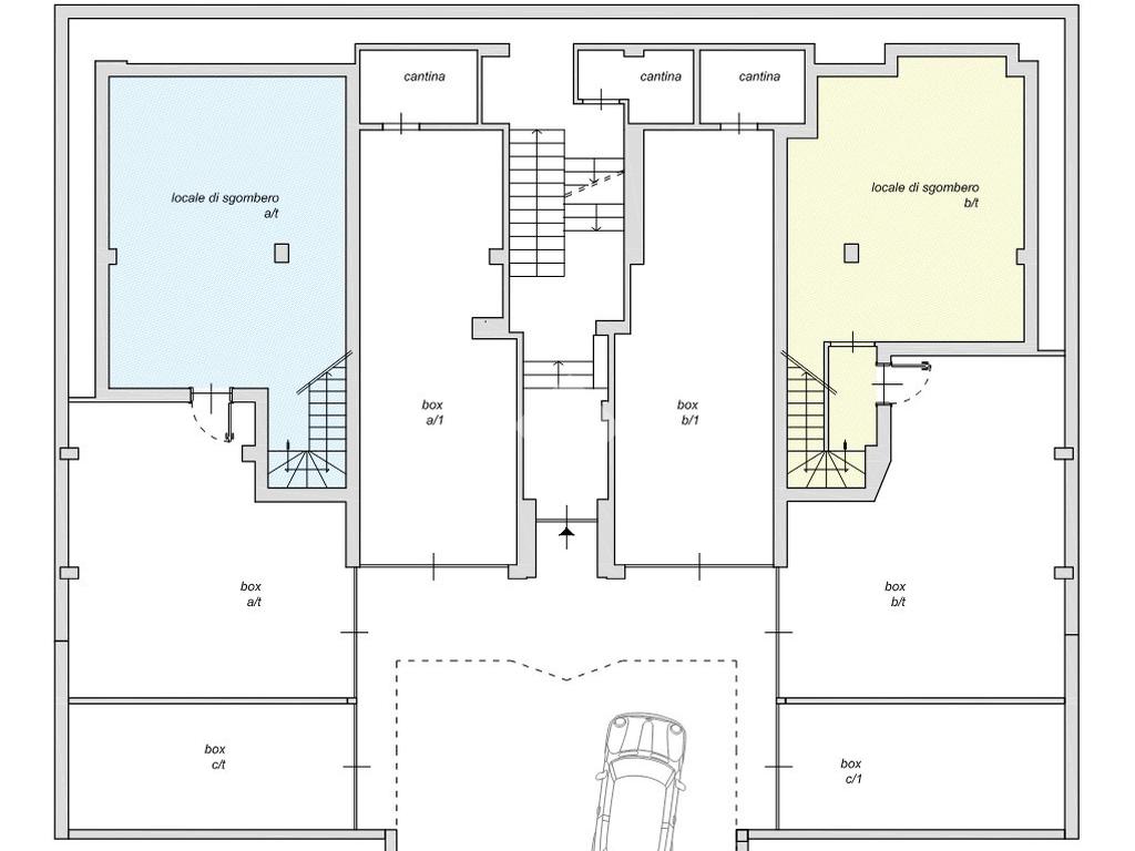
L’impresa costruttrice Peris, a conduzione familiare da oltre vent’anni, sviluppa ogni progetto partendo da uno studio accurato finalizzato a ridurre le dispersioni di calore ed eliminare i ponti termici. In fase di progettazione viene inoltre adottato come riferimento il protocollo ITACA, un sistema riconosciuto per la valutazione della sostenibilità ambientale degli è realizzare immobili ad alta efficienza energetica, capaci di garantire un elevato comfort termico e abitativo. Questo risultato viene raggiunto non solo attraverso la scelta di materiali performanti, ma soprattutto grazie a un’attenta cura nella posa e nella realizzazione dei dettagli costruttivi, in particolare nei punti di connessione tra i diversi Progetto nasce con l’intento di andare oltre gli attuali requisiti normativi regionali e nazionali, proponendo abitazioni eco-sostenibili con eccezionali risultati in termini di efficienza e risparmio energetico. Rappresenta una proposta innovativa per il territorio, capace di coniugare comfort abitativo e qualità costruttiva, con un significativo risparmio nei consumi e una sensibile riduzione dell’impatto ambientale, in particolare delle emissioni di palazzina, composta da sole sei unità abitative e dotata di impianto fotovoltaico, sorge all’interno di un nuovo quartiere pre-collinare, in una posizione esclusiva, soleggiata e particolarmente di circa 130 mq e disposto su due livelli, è stato progettato per valorizzare al meglio gli spazi e la luce naturale. La zona giorno, ampia e luminosa, si apre su un terrazzo coperto di 14 mq: uno spazio piacevole da vivere in ogni stagione, da cui si gode di una vista aperta sulle colline di Castiglione Torinese, capace di trasmettere una sensazione di quiete e piano superiore, caratterizzato da un’altezza al colmo di circa 4 metri, offre spazi ampi e versatili e può essere suddiviso in tre locali, oltre a un secondo bagno degli aspetti più interessanti è la possibilità di personalizzare la scelta delle finiture e creare una casa davvero su comfort abitativo è assicurato da impianti di ultima generazione: ogni unità sarà dotata di riscaldamento autonomo con pompa di calore, in grado di garantire ambienti salubri, consumi contenuti e un concreto risparmio energetico. È inoltre prevista la predisposizione per l’installazione della Ventilazione Meccanica Controllata, per una qualità dell’aria ancora più completare la proprietà, vi è la possibilità di acquistare un box auto singolo al piano interrato al prezzo di € 20.000, con il vantaggio di una detrazione fiscale del 50% sul costo di costruzione sarà realizzato con tecnologie costruttive avanzate: cappotto termico in Neopor da 14 cm, isolamento acustico, serramenti con vetri a bassa emissione e soluzioni studiate per limitare al massimo le dispersioni di calore. Anche la copertura sarà altamente performante, con lana di vetro superbac, microventilazione e barriera al a queste caratteristiche, l’immobile raggiungerà la classe energetica A4, sinonimo di massimo comfort, bassi costi di gestione e ridotto impatto ambientale.

Mostra tutto

Nelle vicinanze

Trasporto pubblico Trasporto pubblico
Castiglione (Fornace)
Castiglione (Fornace)
1,4 Km
Castiglione (Rezza)
Castiglione (Rezza)
1,4 Km
Scuole Scuole
Scuola secondaria "Enrico Fermi"
1,2 Km
Scuola elementare "Renzo Pezzani"
1,3 Km
Scuola Primaria L. Borione
1,7 Km
Scuola Primaria "M.K.Gandhi"
2,3 Km
Farmacia Farmacia
Farmacia
1,3 Km
Supermercati Supermercati
Borello Supermercati
1,4 Km
Bar Bar
Caffetteria Papillon
1,8 Km
Ristoranti Ristoranti
Aprà
630 m
Mostra tutto

Caratteristiche

Rif.:
60718804
Piano:
1 di 2 (ultimo Piano)
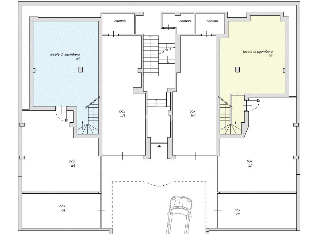
Box:
1
Posti auto:
1
Balconi:
1
Terrazzi:
1
Mostra tutto
Prezzo Prezzo
€ 229.000
Prezzo box Prezzo box
€ 20.000
Rata mutuo Rata mutuo
€ 1.085 / mese
Spese annue Spese annue
€ 600
Proponi il tuo prezzoProponi il tuo prezzo

Classe Energetica

A4
A4
A4
A4
A4
A4
A4
A4
A4
EP globale non rinnovabile:
0.60 kW h/m² anno
EP globale rinnovabile:
0.40 kW h/m² anno
EP invernale del fabbricato:
EP estiva del fabbricato:
Anno di costruzione:
2024
Riscaldamento:
Autonomo
Tipo impianto:
Ad aria
Tipo alimentazione:
Aria

Ti interessa visionare l'immobile?

Fissa un appuntamento  Fissa un appuntamento

Richiedi informazioni

Clicca su Leggi per aprire l'informativa
* Questi campi sono obbligatori

Calcola il tuo mutuo

Semplice e senza impegno
Anticipo

( % )
Mutuo

( % )

pochi semplici passi

inserisci i tuoi dati
Questionario completato
Grazie per aver richiesto un appuntamento senza impegno con un nostro Consulente del Credito e Assicurativo.

Hai inserito correttamente tutti i dati necessari e a breve riceverai una e-mail con un link da convalidare per inviare i tuoi dati.
Affiliato
Immobiliare Gio.pi. Sas
Via Torino, 249 10090 Castiglione Torinese (TO)

Il nostro staff


  • Simone Pivetta
    Affiliato

  • Alessia Giordano
    Affiliata

  • Maram Ayari
    Coordinatrice
Via Torino, 249 10090 Castiglione Torinese (TO)
Zona: Castiglione T.se-Cordova-Rivodora-Pavarolo
Mostra su mappa
Orari: Dal Lunedì al Venerdì : 09.00 - 12.30 e dalle 14.30 - 20.00 Sabato 9.00 - 12.30 e dalle 14.30 - 19.00
Affiliato
Immobiliare Gio.pi. Sas
Via Torino, 249 10090 Castiglione Torinese (TO)

2026 Tecnocasa Franchising S.p.A. - P. IVA 08365160152 - Via Monte Bianco 60/A 20089 Rozzano (MI). Ogni agenzia ha un proprio titolare ed è autonoma. Privacy policy | Policy utilizzo | Cookie policy