Bilocale in vendita

Castiglione Torinese, Strada Del Mondino
€ 145.000
2 locali 2 locali
65 Mq 65 Mq
1 bagno 1 bagno

Bilocale in vendita

Castiglione Torinese, Strada Del Mondino

Descrizione annuncio

CONSEGNA SETTEMBRE 2026 - APPARTAMENTO DI NUOVA COSTRUZIONE IN CLASSE ENERGETICA A3

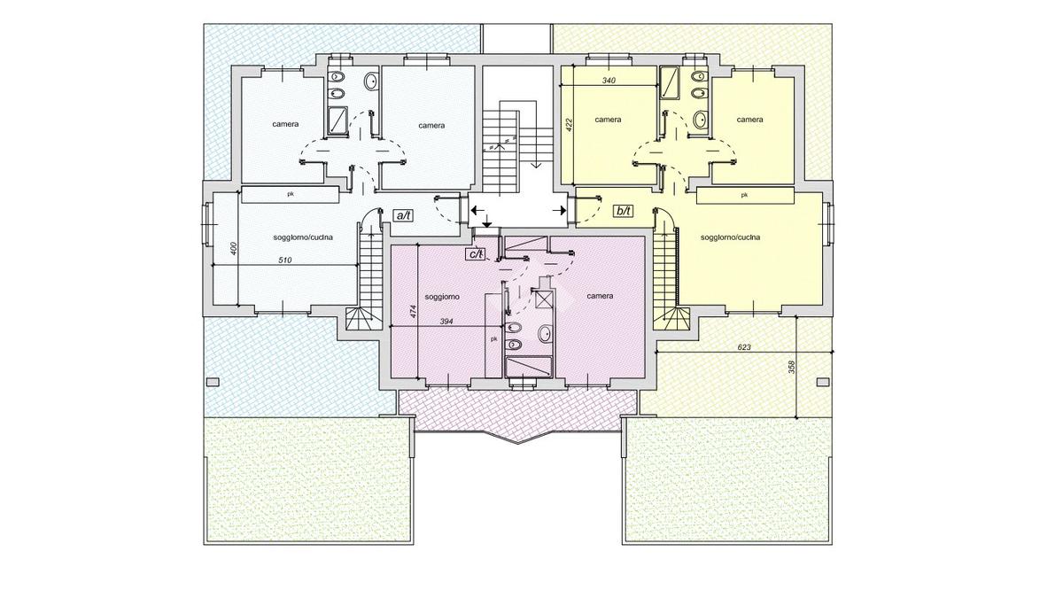
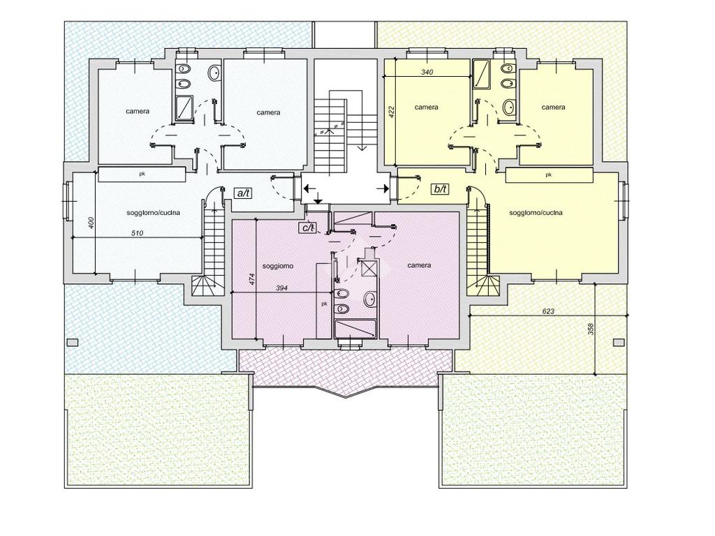
Il progetto propone un’abitazione di circa 65 metri quadrati, sia dalla zona giorno sia dalla camera si accede a un terrazzo coperto che si affaccia sulle colline di Castiglione Torinese, offrendo una vista aperta e suggestiva.

La disposizione interna degli spazi potrà essere modificata secondo le preferenze di chi acquista, così come le finiture, che saranno scelte per rispecchiare gusti ed esigenze personali.

L'intero progetto è pensato per offrire comfort, funzionalità e la possibilità di vivere in un contesto tranquillo e panoramico.

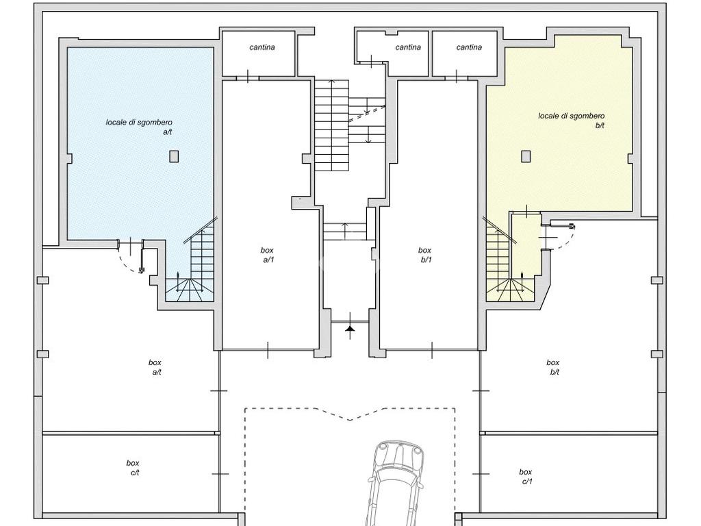
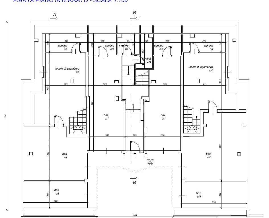
A completare la proposta, vi è la possibilità di acquistare un’autorimessa singola al piano interrato, con detrazione fiscale del cinquanta per cento sul costo di costruzione.

L’edificio sarà composto da sole sei unità, garantendo così un contesto tranquillo e riservato, con costi di gestione contenuti. Ogni abitazione sarà dotata di impianto fotovoltaico e di un sistema di riscaldamento autonomo alimentato da una caldaia a pompa di calore, per un maggior risparmio energetico e un basso impatto ambientale.

Particolare attenzione è stata dedicata alla stabilità e alla sicurezza della collina, intervenendo sul drenaggio delle parti interrate per un efficace controllo delle infiltrazioni.

Anche l’efficienza energetica è stata al centro della progettazione, verra' realizzato il cappotto termico sull'intero involucro dell'edificio, i serramenti sono a vetro isolante con trattamento a bassa emissione, oltre all’eliminazione dei punti critici di dispersione termica.

Grazie all’impiego di materiali di ultima generazione e soluzioni tecniche avanzate, le abitazioni raggiungeranno una prestazione energetica pari alla Classe A3. Questo risultato garantisce un elevato comfort termico e una qualità dell’abitare superiore, unita a un significativo risparmio sia nei consumi che nei costi di gestione. Il progetto mira anche a ridurre l’impatto sull’ambiente, con una sensibile diminuzione delle emissioni di anidride carbonica in atmosfera.

Se doveste VENDERE o LOCARE un immobile potete rivolgetevi a Noi, possiamo offrire una valutazione gratuita e senza impegno, per soddisfare le numerose richieste della nostra selezionata clientela. Cerchiamo ville, appartamenti, rustici, case indipendenti e terreni.

Mostra tutto

Nelle vicinanze

Trasporto pubblico Trasporto pubblico
Castiglione (Rezza)
Castiglione (Rezza)
1,5 Km
Castiglione (Fornace)
Castiglione (Fornace)
1,5 Km
Scuole Scuole
Scuola secondaria "Enrico Fermi"
1,3 Km
Scuola elementare "Renzo Pezzani"
1,3 Km
Scuola Primaria L. Borione
1,7 Km
Scuola Primaria "M.K.Gandhi"
2,3 Km
Farmacia Farmacia
Farmacia
1,4 Km
Supermercati Supermercati
Borello Supermercati
1,4 Km
Bar Bar
Caffetteria Papillon
1,8 Km
Ristoranti Ristoranti
Aprà
670 m
Mostra tutto

Caratteristiche

Rif.:
61033628
Piano:
1 di 2 (Piano basso)
Terrazzi:
1
Camere da letto:
1
Arredamento:
Assente
Condizionamento:
Assente
Mostra tutto
Prezzo Prezzo
€ 145.000
Rata mutuo Rata mutuo
€ 684 / mese
Spese annue Spese annue
€ 0
Proponi il tuo prezzoProponi il tuo prezzo

Classe Energetica

A3
A3
A3
A3
A3
A3
A3
A3
A3
EP globale non rinnovabile:
0.60 kW h/m² anno
EP globale rinnovabile:
0.40 kW h/m² anno
EP invernale del fabbricato:
EP estiva del fabbricato:
Anno di costruzione:
2025
Riscaldamento:
Autonomo
Tipo impianto:
Ad aria
Tipo alimentazione:
Aria

Ti interessa visionare l'immobile?

Fissa un appuntamento  Fissa un appuntamento

Richiedi informazioni

Clicca su Leggi per aprire l'informativa
* Questi campi sono obbligatori

Calcola il tuo mutuo

Semplice e senza impegno
Anticipo

( % )
Mutuo

( % )

pochi semplici passi

inserisci i tuoi dati
Questionario completato
Grazie per aver richiesto un appuntamento senza impegno con un nostro Consulente del Credito e Assicurativo.

Hai inserito correttamente tutti i dati necessari e a breve riceverai una e-mail con un link da convalidare per inviare i tuoi dati.
Affiliato
Immobiliare Gio.pi. Sas
Via Torino, 249 10090 Castiglione Torinese (TO)

Il nostro staff


  • Simone Pivetta
    Affiliato

  • Alessia Giordano
    Affiliata

  • Maram Ayari
    Coordinatrice
Via Torino, 249 10090 Castiglione Torinese (TO)
Zona: Castiglione T.se-Cordova-Rivodora-Pavarolo
Mostra su mappa
Orari: Dal Lunedì al Venerdì : 09.00 - 12.30 e dalle 14.30 - 20.00 Sabato 9.00 - 12.30 e dalle 14.30 - 19.00
Affiliato
Immobiliare Gio.pi. Sas
Via Torino, 249 10090 Castiglione Torinese (TO)

2026 Tecnocasa Franchising S.p.A. - P. IVA 08365160152 - Via Monte Bianco 60/A 20089 Rozzano (MI). Ogni agenzia ha un proprio titolare ed è autonoma. Privacy policy | Policy utilizzo | Cookie policy