Quadrilocale in vendita

Castiglione Torinese, Via Donizetti
€ 169.000
4 locali 4 locali
115 Mq 115 Mq
1 bagno 1 bagno

Quadrilocale in vendita

Castiglione Torinese, Via Donizetti

Descrizione annuncio

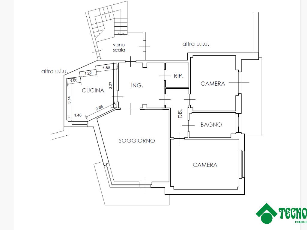
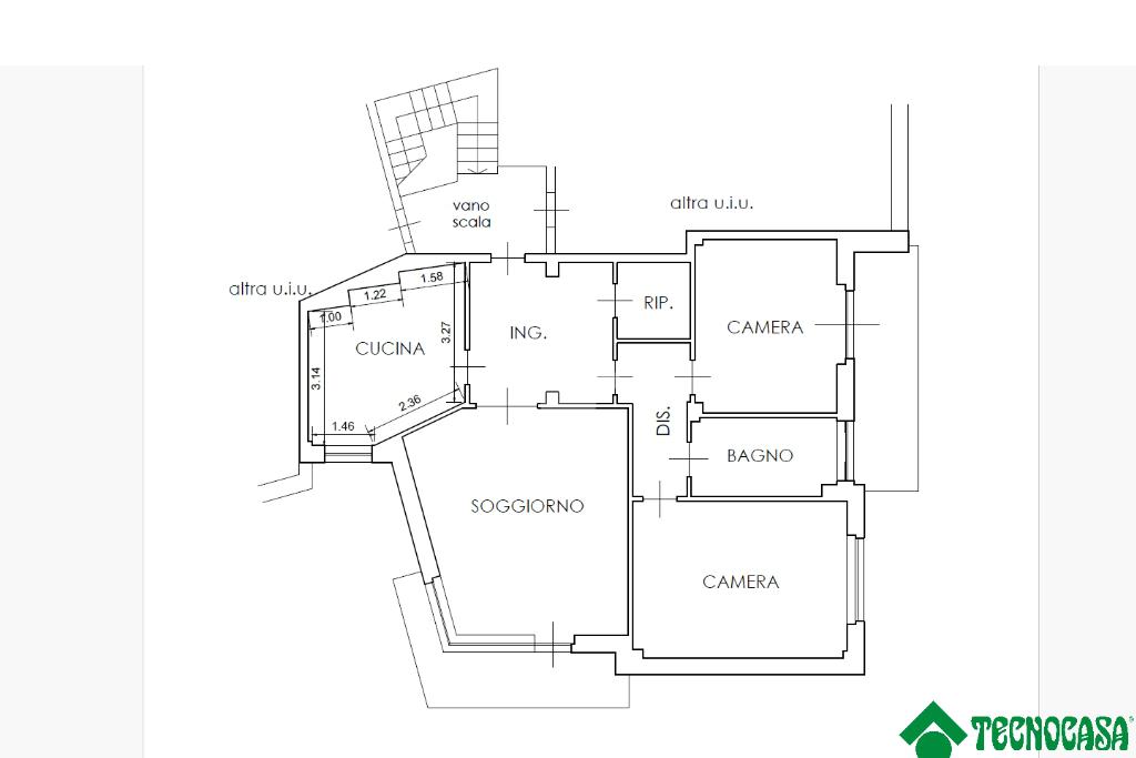
Ampio e luminoso appartamento di 115 mq al confine con San Mauro Torinese.

L'immobile è inserito in un contesto di sole cinque famiglie, si trova al primo ed ultimo piano, ha il riscaldamento autonomo e con spese di gestione minime.
Dal portoncino blindato si accede ad un ampio ingresso con la pavimentazione in marmo dove è presente un comodo ripostiglio, il soggiorno ha una metratura di 25 mq è luminoso e ha un balcone con tende estive e con la vista panoramica sulle montagne. La cucina è un ambiente abitabile e recentemente somo stati rivisti gli impianti idrici, impianto del gas oltre la pavimentazione in gres porcellanato effetto legno. Il disimpegno divide le due camere da letto, entrambe con in legno, una delle due stanze ha un balcone. Il bagno è stato oggetto di ristrutturazione nel 2018. Nello stesso anno
stati ristrutturati la cucina, gli infissi in PVC con vetrocamera e apertura a vasistas e la caldaia, ora a condensazione e autonoma. L’alloggio dispone inoltre di termostato e zanzariere.

La proprietà comprende una cantina di pertinenza e un box auto di circa 14 mq al prezzo di € 15.000.

La posizione è comoda ai principali servizi e ai raccordi stradali che collegano con Torino e Chivasso.

Mostra tutto

Nelle vicinanze

Trasporto pubblico Trasporto pubblico
Castiglione (Pedaggio)
Castiglione (Pedaggio)
140 m
Castiglione (Molino)
Castiglione (Molino)
490 m
Scuole Scuole
Scuola elementare "Renzo Pezzani"
1,2 Km
Scuola secondaria "Enrico Fermi"
1,4 Km
Scuola Primaria L. Borione
2,0 Km
Scuola Primaria "M.K.Gandhi"
2,3 Km
Farmacia Farmacia
Farmacia
1,3 Km
Farmacia Sambuy
1,7 Km
Supermercati Supermercati
Borello Supermercati
150 m
Bar Bar
Caffetteria Papillon
1,9 Km
Ristoranti Ristoranti
Aprà
1,2 Km
BEFeD
2,8 Km
Mostra tutto

Caratteristiche

Rif.:
61113242
Piano:
1 di 2 (ultimo Piano)
Box:
1
Posti auto:
1
Balconi:
2
Camere da letto:
2
Mostra tutto
Prezzo Prezzo
€ 169.000
Prezzo box Prezzo box
€ 15.000
Rata mutuo Rata mutuo
€ 776 / mese
Spese annue Spese annue
€ 700
Proponi il tuo prezzoProponi il tuo prezzo

Classe Energetica

E
E
E
E
E
E
E
E
E
EP globale non rinnovabile:
140.45 kW h/m² anno
EP globale rinnovabile:
55.22 kW h/m² anno
EP invernale del fabbricato:
EP estiva del fabbricato:
Anno di costruzione:
1980
Riscaldamento:
Autonomo
Tipo impianto:
A radiatori
Tipo alimentazione:
Metano

Ti interessa visionare l'immobile?

Fissa un appuntamento  Fissa un appuntamento

Richiedi informazioni

* Questi campi sono obbligatori

Calcola il tuo mutuo

Semplice e senza impegno
Anticipo

( % )
Mutuo

( % )

pochi semplici passi

inserisci i tuoi dati
Questionario completato
Grazie per aver richiesto un appuntamento senza impegno con un nostro Consulente del Credito e Assicurativo.

Hai inserito correttamente tutti i dati necessari e a breve riceverai una e-mail con un link da convalidare per inviare i tuoi dati.
Affiliato
Immobiliare Gio.pi. Sas
Via Torino, 249 10090 Castiglione Torinese (TO)

Il nostro staff


  • Simone Pivetta
    Affiliato

  • Alessia Giordano
    Affiliata

  • Maram Ayari
    Coordinatrice
Via Torino, 249 10090 Castiglione Torinese (TO)
Zona: Castiglione T.se-Cordova-Rivodora-Pavarolo
Mostra su mappa
Orari: Dal Lunedì al Venerdì : 09.00 - 12.30 e dalle 14.30 - 20.00 Sabato 9.00 - 12.30 e dalle 14.30 - 19.00
Affiliato
Immobiliare Gio.pi. Sas
Via Torino, 249 10090 Castiglione Torinese (TO)

2025 Tecnocasa Franchising S.p.A. - P. IVA 08365160152 - Via Monte Bianco 60/A 20089 Rozzano (MI). Ogni agenzia ha un proprio titolare ed è autonoma. Privacy policy | Policy utilizzo | Cookie policy