Trilocale in vendita

Castiglione Torinese, Via Torino
€ 259.000
3 locali 3 locali
100 Mq 100 Mq
1 bagno 1 bagno

Trilocale in vendita

Castiglione Torinese, Via Torino

Descrizione annuncio

Disponibile da dicembre 2025

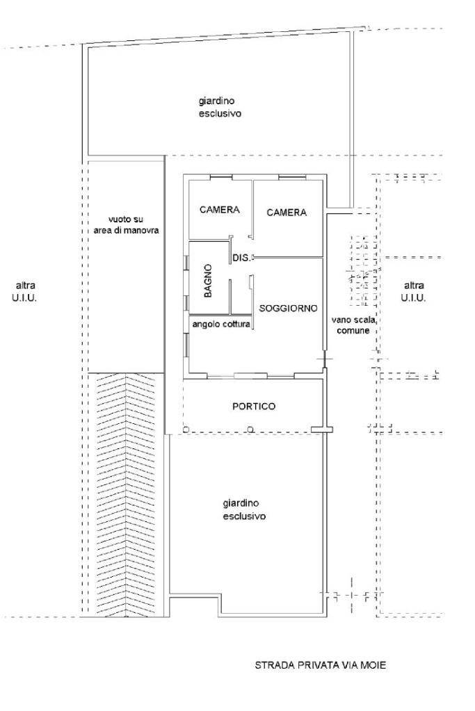
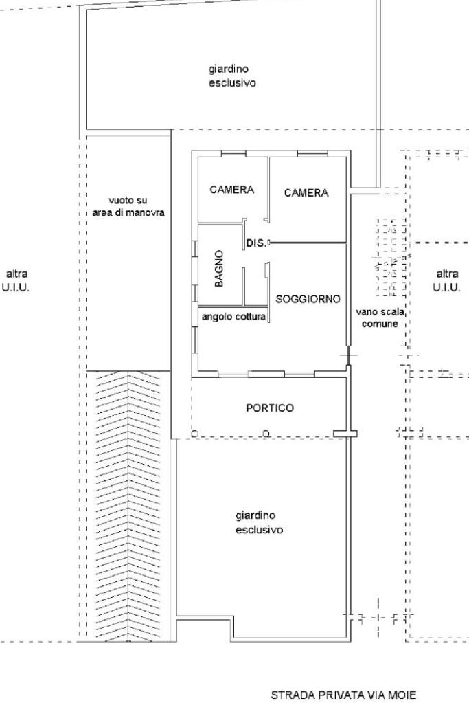
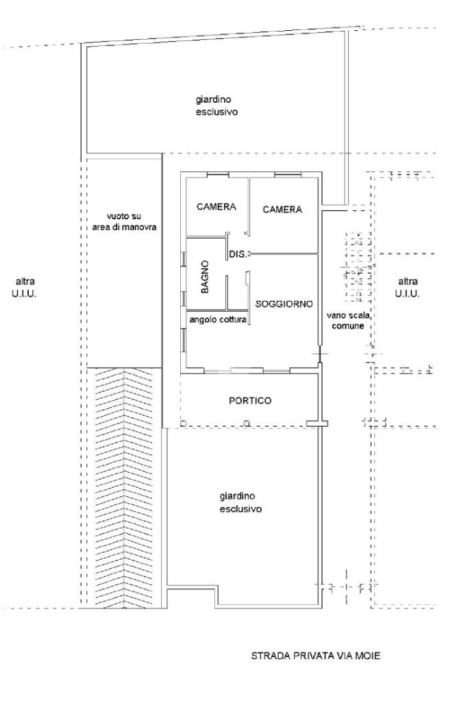
Nel cuore di San Raffaele Cimena, in un complesso residenziale recente e comodo a tutti i servizi del paese, è in vendita un ampio trilocale al piano terra con doppio giardino, portico e impianto fotovoltaico da 1,1 kW.

La posizione è davvero pratica: l’autostrada Torino-Milano e Chivasso sono facilmente raggiungibili e, per chi si muove senza auto, ci sono la linea GTT, scuole, market e parco pubblico a due passi.

Si accede attraverso una porta blindata. Entrando si trova un soggiorno spazioso con cucina a vista e piano a induzione. Due grandi porte finestre portano direttamente al portico, chiuso da zanzariere scorrevoli, perfetto per mangiare o rilassarsi all’aperto.

La zona notte è separata da un disimpegno e comprende due camere da letto e un bagno molto comodo con una doccia ampia. I giardini, accessibili anche dalla camera tramite portafinestra, sono circondati da siepi che garantiscono privacy. All’esterno c’è anche una zona solarium in legno con punti acqua, ideale per chi ama vivere lo spazio esterno.

La casa è completamente elettrica, pensata per ridurre consumi ed emissioni. È dotata di pompe di calore Daikin, infissi in legno con doppi vetri e zanzariere, riscaldamento a pavimento e split caldo/freddo in soggiorno e camera. Non manca un sistema antifurto completo con telecamere, gestibile da smartphone.

Le spese condominiali sono contenute: circa 650 euro l’anno. Box auto di 40 mq a 28.000 euro.

Un’ottima soluzione per chi cerca comfort moderni, spazi esterni privati e una posizione tranquilla ma servita!

Mostra tutto

Nelle vicinanze

Trasporto pubblico Trasporto pubblico
Castiglione (Rezza)
Castiglione (Rezza)
250 m
Castiglione (Sant' Eufemia)
Castiglione (Sant' Eufemia)
250 m
Scuole Scuole
Scuola secondaria "Enrico Fermi"
280 m
Scuola elementare "Renzo Pezzani"
320 m
Scuola Primaria L. Borione
510 m
Scuola Primaria "M.K.Gandhi"
930 m
Farmacia Farmacia
Farmacia
220 m
Supermercati Supermercati
Borello Supermercati
150 m
Penny Market
2,2 Km
Bar Bar
Caffetteria Papillon
440 m
Ristoranti Ristoranti
Aprà
960 m
Mostra tutto

Caratteristiche

Rif.:
61121678
Piano:
Terra con giardino di 2
Totale piani:
2
Box:
1
Posti auto:
2
Balconi:
1
Mostra tutto
Prezzo Prezzo
€ 259.000
Prezzo box Prezzo box
€ 28.000
Rata mutuo Rata mutuo
€ 1.190 / mese
Spese annue Spese annue
€ 600
Proponi il tuo prezzoProponi il tuo prezzo

Classe Energetica

A1
A1
A1
A1
A1
A1
A1
A1
A1
EP globale non rinnovabile:
85.36 kW h/m² anno
EP globale rinnovabile:
168.33 kW h/m² anno
EP invernale del fabbricato:
EP estiva del fabbricato:
Anno di costruzione:
2018
Riscaldamento:
Autonomo
Tipo impianto:
A pavimento
Tipo alimentazione:
Altro

Ti interessa visionare l'immobile?

Fissa un appuntamento  Fissa un appuntamento

Richiedi informazioni

* Questi campi sono obbligatori

Calcola il tuo mutuo

Semplice e senza impegno
Anticipo

( % )
Mutuo

( % )

pochi semplici passi

inserisci i tuoi dati
Questionario completato
Grazie per aver richiesto un appuntamento senza impegno con un nostro Consulente del Credito e Assicurativo.

Hai inserito correttamente tutti i dati necessari e a breve riceverai una e-mail con un link da convalidare per inviare i tuoi dati.
Affiliato
Immobiliare Gio.pi. Sas
Via Torino, 249 10090 Castiglione Torinese (TO)

Il nostro staff


  • Simone Pivetta
    Affiliato

  • Alessia Giordano
    Affiliata

  • Maram Ayari
    Coordinatrice
Via Torino, 249 10090 Castiglione Torinese (TO)
Zona: Castiglione T.se-Cordova-Rivodora-Pavarolo
Mostra su mappa
Orari: Dal Lunedì al Venerdì : 09.00 - 12.30 e dalle 14.30 - 20.00 Sabato 9.00 - 12.30 e dalle 14.30 - 19.00
Affiliato
Immobiliare Gio.pi. Sas
Via Torino, 249 10090 Castiglione Torinese (TO)

2025 Tecnocasa Franchising S.p.A. - P. IVA 08365160152 - Via Monte Bianco 60/A 20089 Rozzano (MI). Ogni agenzia ha un proprio titolare ed è autonoma. Privacy policy | Policy utilizzo | Cookie policy