Quadrilocale in vendita

Castiglione Torinese, Strada Rubattera
€ 215.000
4 locali 4 locali
133 Mq 133 Mq
2 bagni 2 bagni

Quadrilocale in vendita

Castiglione Torinese, Strada Rubattera

Descrizione annuncio

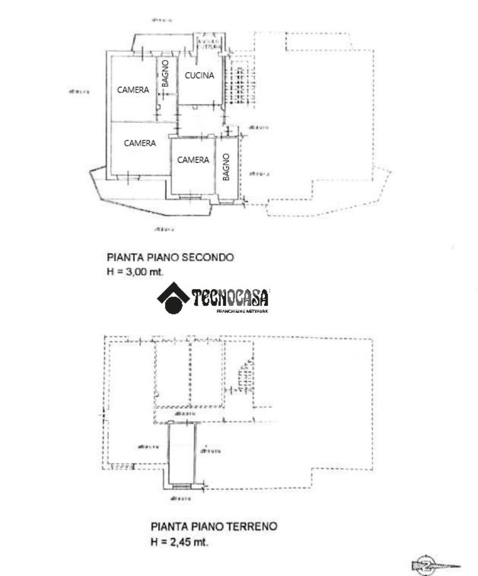
Appartamento ristrutturato con terrazzo panoramico

In una tranquilla palazzina di sole quattro unità, immersa nel verde della collina di Castiglione Torinese, appartamento ampio e recentemente rinnovato, situato al primo ed ultimo piano.

L’ingresso si apre su un disimpegno che separa in modo funzionale la zona giorno da quella notte. Da una parte si sviluppano la cucina abitabile e il soggiorno, entrambi ambienti luminosi e di comode dimensioni; dall’altra si trovano due camere da letto, una delle quali attualmente utilizzata come sala da pranzo, oltre ai due bagni ristrutturati, uno con vasca e l’altro con doccia. Un pratico ripostiglio completa la disposizione interna.

La casa conserva l’eleganza dei pavimenti originali in marmo, riportati a nuovo durante la ristrutturazione. All’esterno sono presenti un balcone e un ampio terrazzo con affaccio sul verde, perfetti per momenti di relax o per mangiare all’aperto.

La proprietà comprende una cantina, un posto auto e due box auto, rispettivamente di circa 35 mq e 12 mq, ideali per chi necessita di spazio aggiuntivo ad € 25.000,00 in più.

Il riscaldamento è centralizzato con termovalvole e la caldaia condominiale è stata sostituita di recente. Gli infissi sono dotati di zanzariere e i balconi dispongono di tende da sole. La cucina e gli arredi dei bagni restano compresi nella vendita, rendendo l’abitazione subito fruibile.

Una soluzione interessante per chi desidera ambienti ampi, una ristrutturazione recente e un contesto tranquillo ma ben collegato ai servizi principali.

Mostra tutto

Nelle vicinanze

Trasporto pubblico Trasporto pubblico
Castiglione (Fornace)
Castiglione (Fornace)
670 m
Castiglione (Rezza)
Castiglione (Rezza)
800 m
Scuole Scuole
Scuola elementare "Renzo Pezzani"
670 m
Scuola secondaria "Enrico Fermi"
720 m
Scuola Primaria L. Borione
1,4 Km
Scuola Primaria "M.K.Gandhi"
1,9 Km
Farmacia Farmacia
Farmacia
770 m
Farmacia Sambuy
2,7 Km
Supermercati Supermercati
Borello Supermercati
830 m
Bar Bar
Caffetteria Papillon
1,4 Km
Ristoranti Ristoranti
Aprà
160 m
Mostra tutto

Caratteristiche

Rif.:
61150590
Piano:
1 di 2 (Piano medio)
Box:
2
Posti auto:
1
Balconi:
1
Terrazzi:
1
Mostra tutto
Prezzo Prezzo
€ 215.000
Prezzo box Prezzo box
€ 25.000
Rata mutuo Rata mutuo
€ 1.015 / mese
Spese annue Spese annue
€ 510
Proponi il tuo prezzoProponi il tuo prezzo

Classe Energetica

E
E
E
E
E
E
E
E
E
EP globale non rinnovabile:
548.00 kW h/m² anno
EP globale rinnovabile:
122.00 kW h/m² anno
EP invernale del fabbricato:
EP estiva del fabbricato:
Anno di costruzione:
1970
Riscaldamento:
Centralizzato
Tipo impianto:
A radiatori
Tipo alimentazione:
Metano

Ti interessa visionare l'immobile?

Fissa un appuntamento  Fissa un appuntamento

Richiedi informazioni

Clicca su Leggi per aprire l'informativa
* Questi campi sono obbligatori

Calcola il tuo mutuo

Semplice e senza impegno
Anticipo

( % )
Mutuo

( % )

pochi semplici passi

inserisci i tuoi dati
Questionario completato
Grazie per aver richiesto un appuntamento senza impegno con un nostro Consulente del Credito e Assicurativo.

Hai inserito correttamente tutti i dati necessari e a breve riceverai una e-mail con un link da convalidare per inviare i tuoi dati.
Affiliato
Immobiliare Gio.pi. Sas
Via Torino, 249 10090 Castiglione Torinese (TO)

Il nostro staff


  • Simone Pivetta
    Affiliato

  • Alessia Giordano
    Affiliata

  • Maram Ayari
    Coordinatrice
Via Torino, 249 10090 Castiglione Torinese (TO)
Zona: Castiglione T.se-Cordova-Rivodora-Pavarolo
Mostra su mappa
Orari: Dal Lunedì al Venerdì : 09.00 - 12.30 e dalle 14.30 - 20.00 Sabato 9.00 - 12.30 e dalle 14.30 - 19.00
Affiliato
Immobiliare Gio.pi. Sas
Via Torino, 249 10090 Castiglione Torinese (TO)

2025 Tecnocasa Franchising S.p.A. - P. IVA 08365160152 - Via Monte Bianco 60/A 20089 Rozzano (MI). Ogni agenzia ha un proprio titolare ed è autonoma. Privacy policy | Policy utilizzo | Cookie policy