Villa singola in vendita

Castiglione Torinese, Str. del Mondino
€ 498.000
7 locali 7 locali
240 Mq 240 Mq
3 bagni 3 bagni

Villa singola in vendita

Castiglione Torinese, Str. del Mondino

Descrizione annuncio

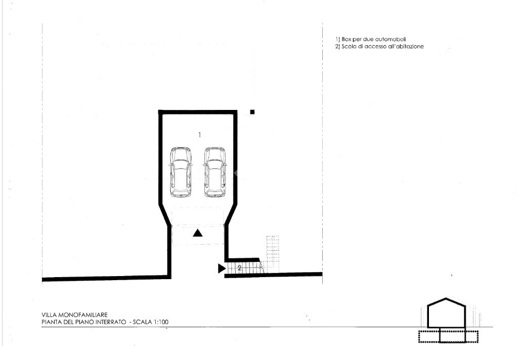
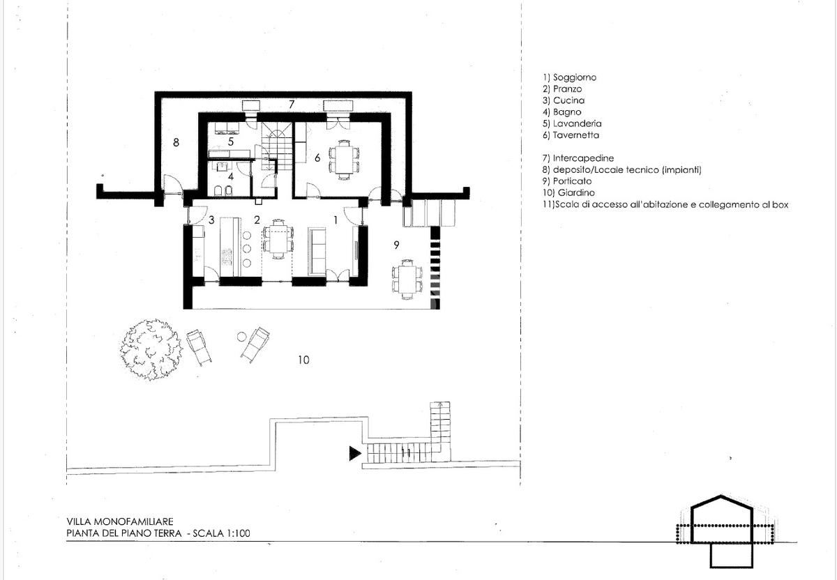
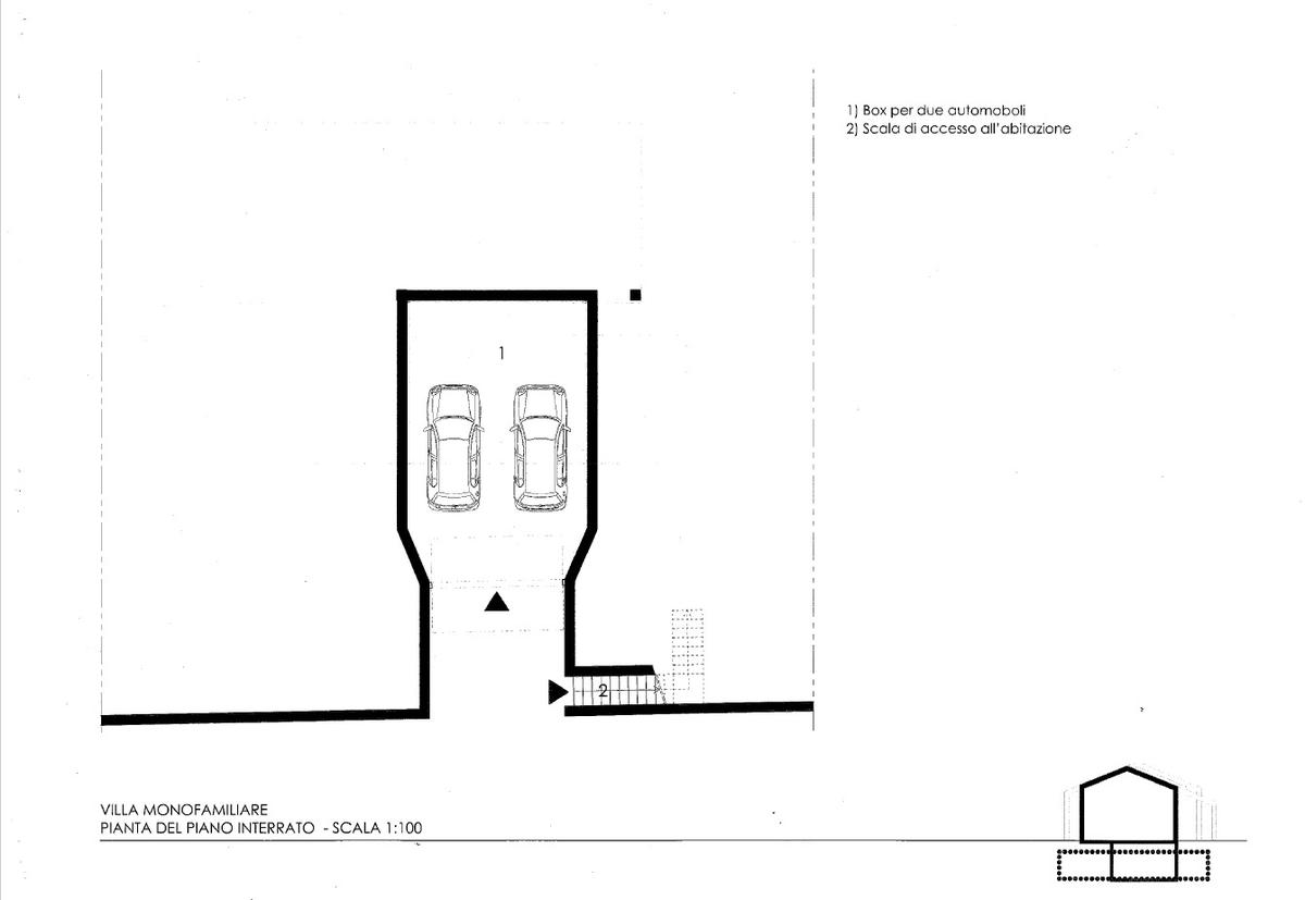
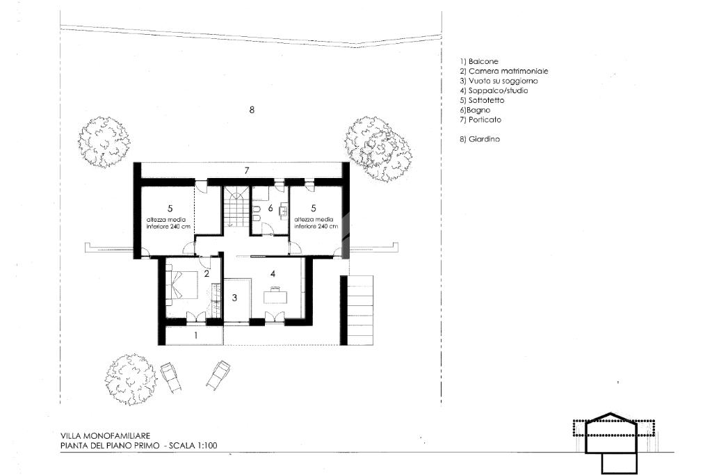
VILLA SINGOLA DI NUOVA COSTRUZIONE IN CLASSE ENERGETICA A4 - CONSEGNA TRA 18 MESI

Nella soleggiata collina di Castiglione Torinese, a meno di 2 km dal centro del Paese, nasce un contesto residenziale di nuova costruzione di sole sei ville indipendenti dal design moderno e innovativo di nuova costruzione.

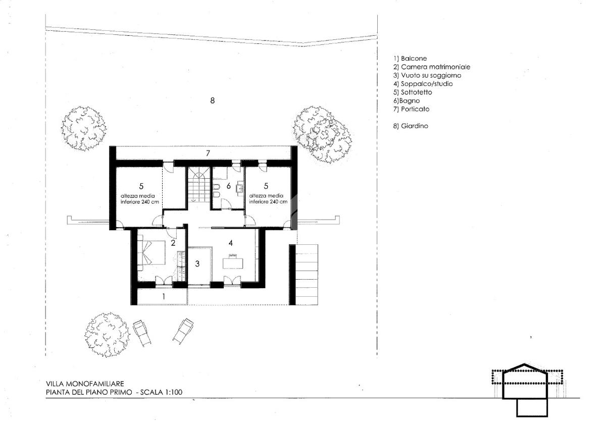
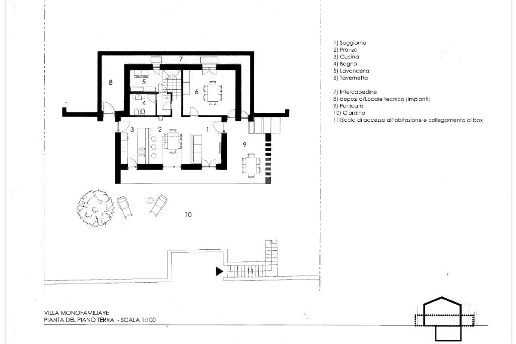
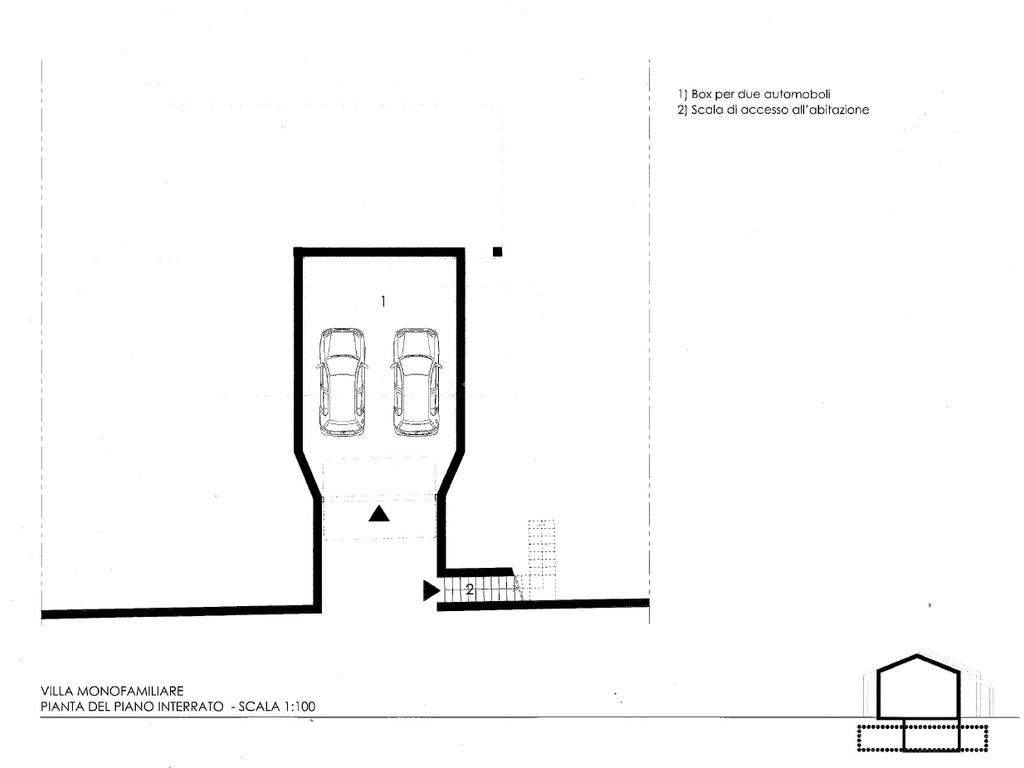
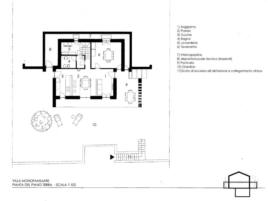
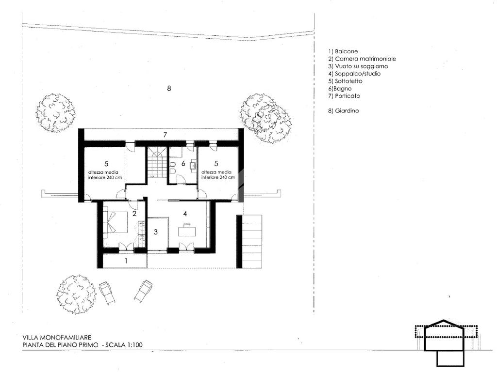
La villa rimane in una posizione panoramica e soleggiata, ha una metratura di 240 mq con balcone, giardino pianeggiante e una zona relax servita dal porticato.

La distribuzione interna degli spazi può essere personalizzata in base alle esigenze dell’acquirente, così come la scelta delle finiture per completare l'appartamento che sono inclusi nel prezzo.

La progettazione dell'immobile si distingue per l'attenzione all'efficienza energetica, con un'isolamento termico di alta qualità, serramenti con vetri camera, Impianto fotovoltaico,sistema di riscaldamento autonomo con pompa di calore ed impianto di Ventilazione Meccanica Controllata (VMC) per permette di cambiare l'aria in maniera costante senza dispersione termica, per garantire comfort abitativo e un buon risparmio energetico.

L’edificio sarà realizzato con cappotto termico in Neopor da 14 cm, isolante acustico e infissi con vetri isolanti a bassa emissione e soluzioni costruttive studiate per ridurre le dispersioni di calore. Si prevede sul tetto uno strato di lana di vetro superbac, microventilazione e barriera al vapore.

Grazie all’utilizzo di materiali e impianti di ultima generazione, l’immobile raggiungerà la classe energetica A4, assicurando comfort interno, consumi ridotti e bassi costi di gestione, con un minore impatto ambientale.

Il progetto è pensato per chi cerca una soluzione funzionale, efficiente e inserita in un contesto tranquillo e panoramico.

Se doveste VENDERE o LOCARE un immobile potete rivolgetevi a Noi, possiamo offrire una valutazione gratuita e senza impegno, per soddisfare le numerose richieste della nostra selezionata clientela. Cerchiamo ville, appartamenti, rustici, case indipendenti e terreni.

Mostra tutto

Nelle vicinanze

Trasporto pubblico Trasporto pubblico
Castiglione (Fornace)
Castiglione (Fornace)
1,4 Km
Castiglione (Rezza)
Castiglione (Rezza)
1,4 Km
Scuole Scuole
Scuola secondaria "Enrico Fermi"
1,2 Km
Scuola elementare "Renzo Pezzani"
1,3 Km
Scuola Primaria L. Borione
1,7 Km
Scuola Primaria "M.K.Gandhi"
2,3 Km
Farmacia Farmacia
Farmacia
1,3 Km
Supermercati Supermercati
Borello Supermercati
1,3 Km
Bar Bar
Caffetteria Papillon
1,8 Km
Ristoranti Ristoranti
Aprà
610 m
Mostra tutto

Caratteristiche

Rif.:
61033744
Piano:
3 di 2 (Piano su più livelli)
Box:
1
Posti auto:
2
Terrazzi:
1
Camere da letto:
4
Mostra tutto
Prezzo Prezzo
€ 498.000
Rata mutuo Rata mutuo
€ 2.326 / mese
Spese annue Spese annue
€ 240
Proponi il tuo prezzoProponi il tuo prezzo

Classe Energetica

A3
A3
A3
A3
A3
A3
A3
A3
A3
EP globale non rinnovabile:
60.00 kW h/m² anno
EP globale rinnovabile:
40.00 kW h/m² anno
EP invernale del fabbricato:
EP estiva del fabbricato:
Anno di costruzione:
2025
Riscaldamento:
Autonomo
Tipo impianto:
Ad aria
Tipo alimentazione:
Aria

Ti interessa visionare l'immobile?

Fissa un appuntamento  Fissa un appuntamento

Richiedi informazioni

Clicca su Leggi per aprire l'informativa
* Questi campi sono obbligatori

Calcola il tuo mutuo

Semplice e senza impegno
Anticipo

( % )
Mutuo

( % )

pochi semplici passi

inserisci i tuoi dati
Questionario completato
Grazie per aver richiesto un appuntamento senza impegno con un nostro Consulente del Credito e Assicurativo.

Hai inserito correttamente tutti i dati necessari e a breve riceverai una e-mail con un link da convalidare per inviare i tuoi dati.
Affiliato
Immobiliare Gio.pi. Sas
Via Torino, 249 10090 Castiglione Torinese (TO)

Il nostro staff


  • Simone Pivetta
    Affiliato

  • Alessia Giordano
    Affiliata

  • Maram Ayari
    Coordinatrice
Via Torino, 249 10090 Castiglione Torinese (TO)
Zona: Castiglione T.se-Cordova-Rivodora-Pavarolo
Mostra su mappa
Orari: Dal Lunedì al Venerdì : 09.00 - 12.30 e dalle 14.30 - 20.00 Sabato 9.00 - 12.30 e dalle 14.30 - 19.00
Affiliato
Immobiliare Gio.pi. Sas
Via Torino, 249 10090 Castiglione Torinese (TO)

2026 Tecnocasa Franchising S.p.A. - P. IVA 08365160152 - Via Monte Bianco 60/A 20089 Rozzano (MI). Ogni agenzia ha un proprio titolare ed è autonoma. Privacy policy | Policy utilizzo | Cookie policy